Dit fantastische hoek appartement op de tweede verdieping geniet een waanzinnig uitzicht. Tevens beschikt dit appartement over een ruim balkon op het Zuiden, een extra frans balkon, 3 slaapkamers, twee (!) eigen parkeerplaatsen en een berging op de begane grond. De woning wordt voorzien van een PVC vloer en uitgebreide luxe keuken.
Je bent van harte welkom voor een bezichtiging!
NIEUW OPGELEVERD
Met een ‘nieuwbouw’ woning die binnen korte tijd wordt opgeleverd ben je van alle gemakken voorzien. Door de grote raamkozijnen ervaar je veel licht en kijk je uit over het prachtige Monnickendam.
Het appartementen complex De Regenboog beschikt over een lift en een nette entree. Alle appartementen hebben ook een eigen berging op de begane grond, beschikken over vloerverwarming en videofoon installatie. De zomeravonden beleef je op jouw eigen balkon.
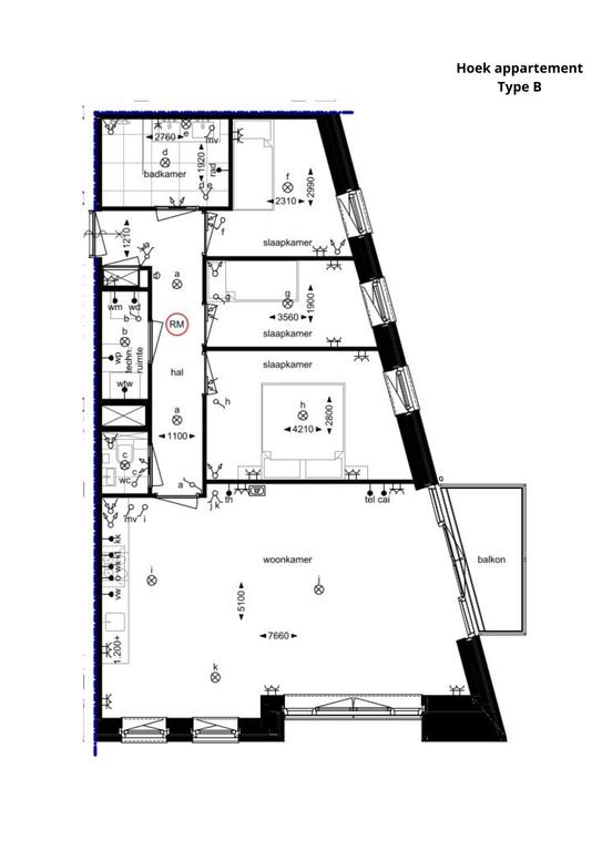
Indeling:
De entree van jouw appartement is ruim en wordt voorzien van een neutrale PVC vloer. Je geniet van een nieuwe keuken, compleet met koelvries combinatie, inductie kookplaat, vaatwasser en genoeg opbergruimte.
Alle slaapkamers zijn licht en ruim van formaat. Aan ruimte geen gebrek. Naast de berging op de begane grond, is er een ideale bergruimte -binnen het appartement- gecreëerd voor bijvoorbeeld de wasmachine.
Duurzaam wonen met energielabel A+++
Jouw nieuwe woning beschikt over een warmtepomp en warmteterugwinning-unit en vloerverwarming. Met een groen energie label A+++ ben je verzekerd van lagere energiekosten.
Geïnteresseerd? Wij zijn natuurlijk benieuwd wie jij bent! Laat het ons weten via e-mail.
We zullen de komende week contact met je opnemen.
– Gelegen op de tweede verdieping
– Wordt gestoffeerd opgeleverd
– Wordt thans opgeleverd in juni/juli;
– Twee eigen parkeerplaatsen;
– Geleverd met nieuwe keuken, toilet en badkamer;
– Duurzaam groen energie label A+++;
Thermo Dynamische warmtepomp, warmteterugwinning (WTW) en vloerverwarming;
– Eigen berging, voorzien van elektra;
– Waarborgsom tweemaal de huur;
– Huurprijs is exclusief servicekosten € 150,-
– Balkon op het Zuidwesten en een frans balkon.
Voorwaarden om in aanmerking te komen voor deze woningen dien je te voldoen aan de inkomensnorm.
Huren is van toepassing wanneer voldoende inkomsten en (vast) dienstverband kan worden aangetoond.