Ben je op zoek naar een appartement in Marken en ben je nu woonachtig in Marken of Waterland? Dit is je kans!
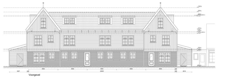
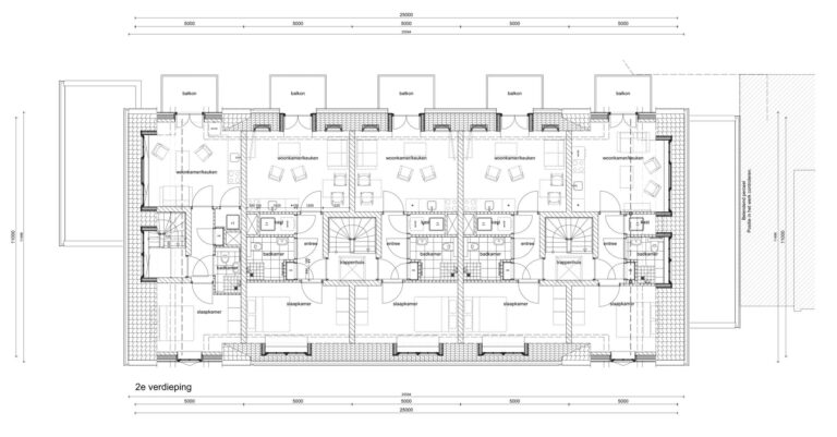
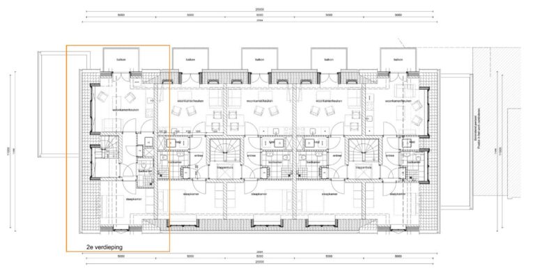
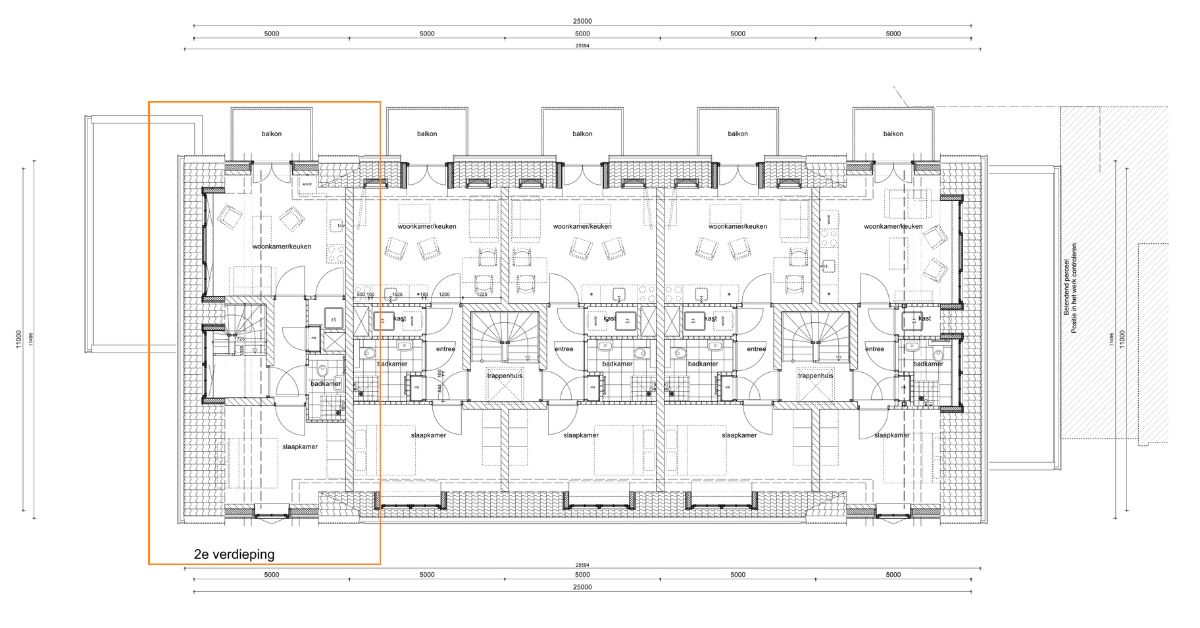
Op de voormalige locatie van café “Flying Sailor” aan de Westerstraat 25 in Marken worden 15 moderne appartementen gerealiseerd. Bouwnummer 11, een appartement van circa 36 m², is het laatste beschikbare appartement in dit project. Gelegen helemaal rechts bovenin, biedt dit appartement een ideale plek voor een starter of iemand die op zoek is naar een energiezuinig en comfortabel thuis.
Kenmerken van het appartement:
Oppervlakte: Circa 36 m²
Locatie: Gelegen op de bovenste verdieping aan de rechterzijde
Energie: Voorlopig energielabel A++ met warmtepomp voor verwarming, koeling en warmwater
Indeling: Open woonkamer met keukenruimte, aparte slaapkamer, en moderne badkamer
Installaties: Verwarming en koeling via lucht inblaassysteem, geavanceerde ventilatie, geen gasinstallatie
Over Marken: Marken is een sfeervol eiland met historische charme. Het staat bekend om zijn traditionele houten huizen, schilderachtige straatjes en rustige omgeving. Tegelijkertijd is het goed bereikbaar, met Volendam en Amsterdam binnen handbereik. Het is de perfecte locatie voor wie houdt van rust, maar toch dicht bij de stad wil wonen.
Interesse? Neem contact op met ons kantoor voor meer informatie!

















