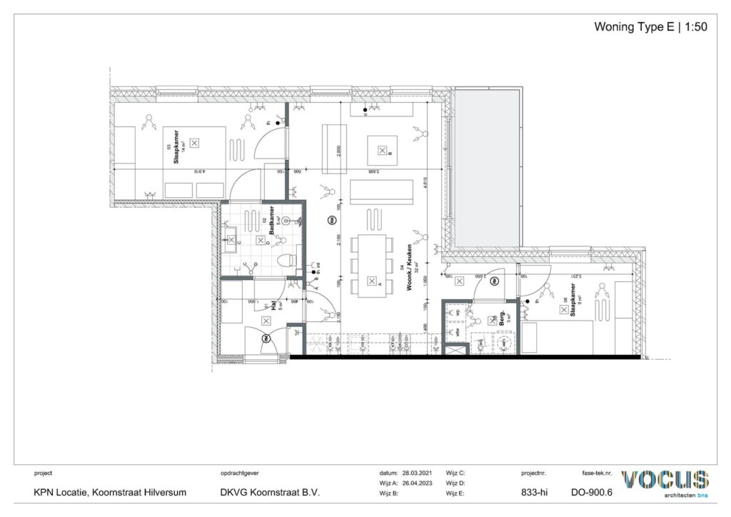
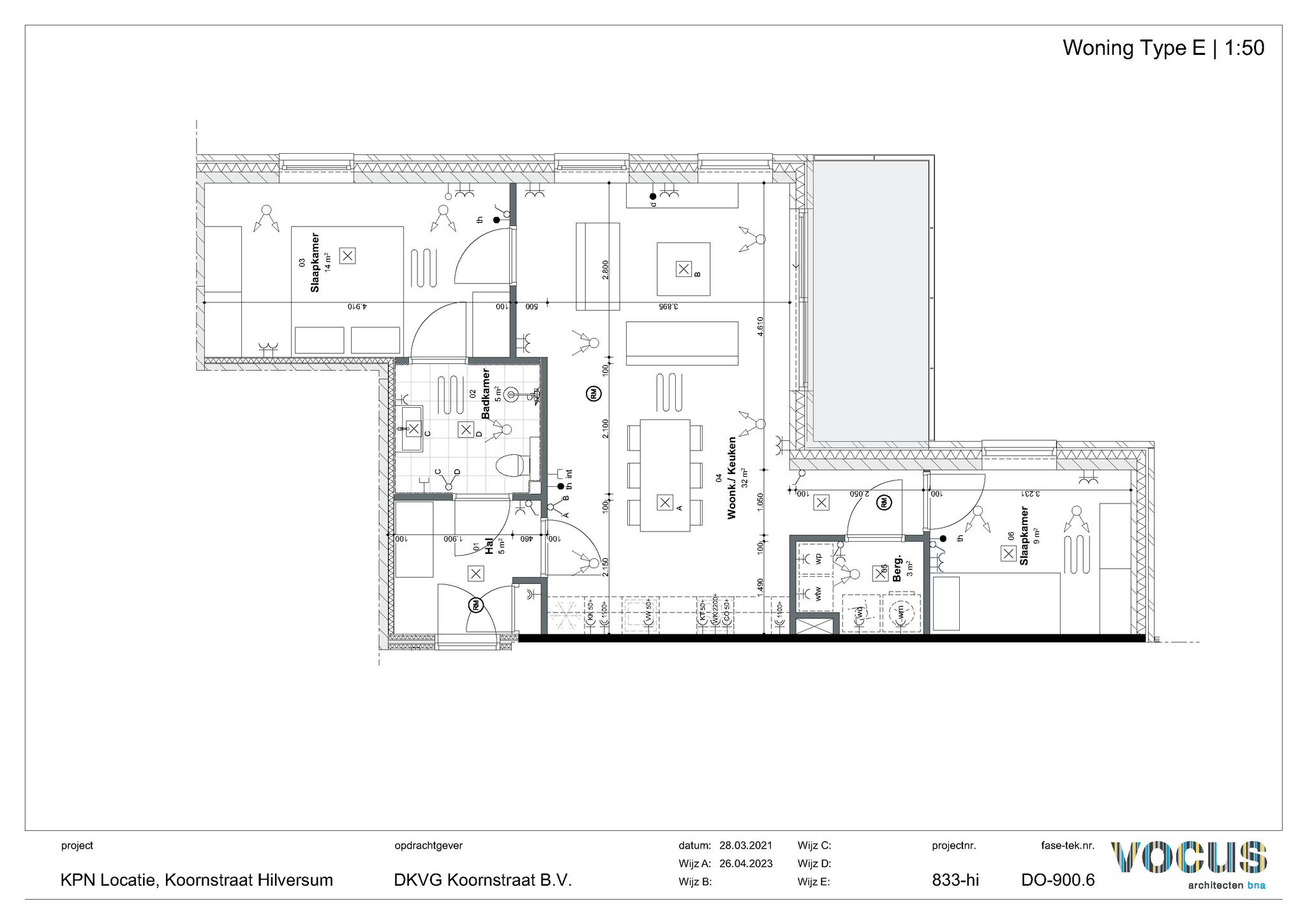
Woningtype E is een ruim 3 kamer appartement waarvan 2 slaapkamers met een heerlijk balkon op het zonnige zuiden!
Deze appartementen liggen op de eerste, tweede, derde en vierde verdieping. De eigenschappen zijn op elke etage identiek.
Op de mooiste plek van Hilversum, tussen de Herenstraat en de Zeedijk komen 56, aantrekkelijke appartementen op het voormalige KPN-terrein.
DKVG Koornstraat B.V. ontwikkelt 56 aantrekkelijke eigentijdse appartementen op het voormalige KPN terrein aan de Koornstraat 39 te Hilversum, welke een prachtige, duurzame woongelegenheid zal vormen.
Via project website “hilversumcityliving” kunt u zich gemakkelijk inschrijven.
Ons prachtige Hilversum onderscheidt zich van andere steden omdat zij bekend staat als echte “Tuinstad”, doordat de gemeente zich kenmerkt door de groene straten. Hilversum wordt oorspronkelijke door bewoners nog altijd als “dorp” betiteld.
Winkelen doet u bijvoorbeeld bij de Gooische Brink, Hilvertshof of natuurlijk bij een tal van alle andere winkels, die op loopafstand te bereiken zijn. Voor de fanatiekelingen onder ons kan sporten om de hoek en geniet u van een heerlijke lunch of diner in één van de restaurants in Hilversum. Kortom genieten kan op loopafstand!
Nieuwbouw project Hilversum City Living is een modern Nieuwbouw project, waar het karakteristieke van Hilversum in is verwerkt. Hilversum City Living heeft een prachtige idyllische groene binnentuin, waar het in de zomeravond goed toeven is!
De appartementen hebben allemaal een ruim balkon óf dakterras. Tevens is er gedacht aan voldoende parkeergelegenheid in de binnenstad. Parkeren doet u eenvoudig in de ondergelegen parkeergarage.
Het appartementencomplex bestaat uit ruime 1 én 2 slaapkamer appartementen en ruim opgezette studio’s.
De appartementen hebben een afmeting van ca. 39m2 tot ca. 86m2 en als kers op de taart worden deze voorzien van een keuken en sanitair!
Alle appartementen worden voorzien van het duurzame energielabel A, zonnepanelen en zijn tevens gelegen op eigen grond.
Het wonen in Hilversum City Living is vóór de start al zorgeloos, want het gehele project wordt met een Bouwgarantlabel opgeleverd, dat wil zeggen dat de afbouw gegarandeerd is. Dat is wel zo zeker!
Ook nieuwsgierig geworden? Via de site “hilversumcityliving” kunt u zich gemakkelijk inschrijven.
Een opsomming voor alle appartementen:
– Voorzien van duurzaam Energielabel A
– Volledig elektrisch, dat betekent gasloos
– Inclusief keuken en sanitair|
– Voorzien van balkon of dakterras
– Gezamenlijke binnentuin
– Parkeren is voorzien in parkeerkelder (€35.000,- verplichte afname) plus een -gezamenlijke fietsenberging
– 2 liften aanwezig
– VVE wordt opgestart
– Op het dakvlak worden zonnepanelen aangebracht
Op dit moment gaan de appartementen die op de 1e, 2e, 3e en 4e verdieping worden gerealiseerd in de verkoop.
DKVG Koornstraat B.V. de ontwikkelaar onderzoekt de mogelijkheden om een passende invulling te geven aan de ruimten op de begane grond, in goed overleg met de gemeentelijke diensten en omwonenden. Volgens het vigerende bestemmingsplan mogen de ruimten worden gebruikt voor winkel- kantoor of horeca functies.
Wij kunnen ons voorstellen dat ook een invulling met zorgfunctie of woonfuncties goed passen op deze locatie.
Wij verwachten op redelijk korte termijn hierover meer duidelijkheid te verkrijgen.
Schrijf u nu in via de site “hilversumcityliving”













