Te koop: Nieuwbouwstudio’s en appartementen in hartje Purmerend – De Coöperatie
Adres: Achterdijk 26 t/m 30
Welkom bij De Coöperatie, een bijzonder nieuwbouwproject in het levendige hart van Purmerend! Deze studio’s en appartementen combineren eigentijds wooncomfort met duurzaamheid en een fantastische locatie. Ideaal voor starters, jonge professionals en iedereen die modern en energiezuinig wil wonen.
Woningen op maat voor iedereen
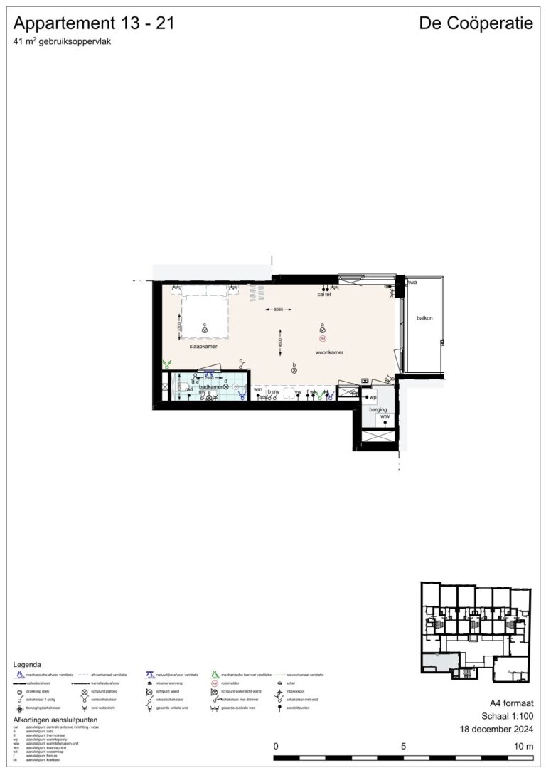
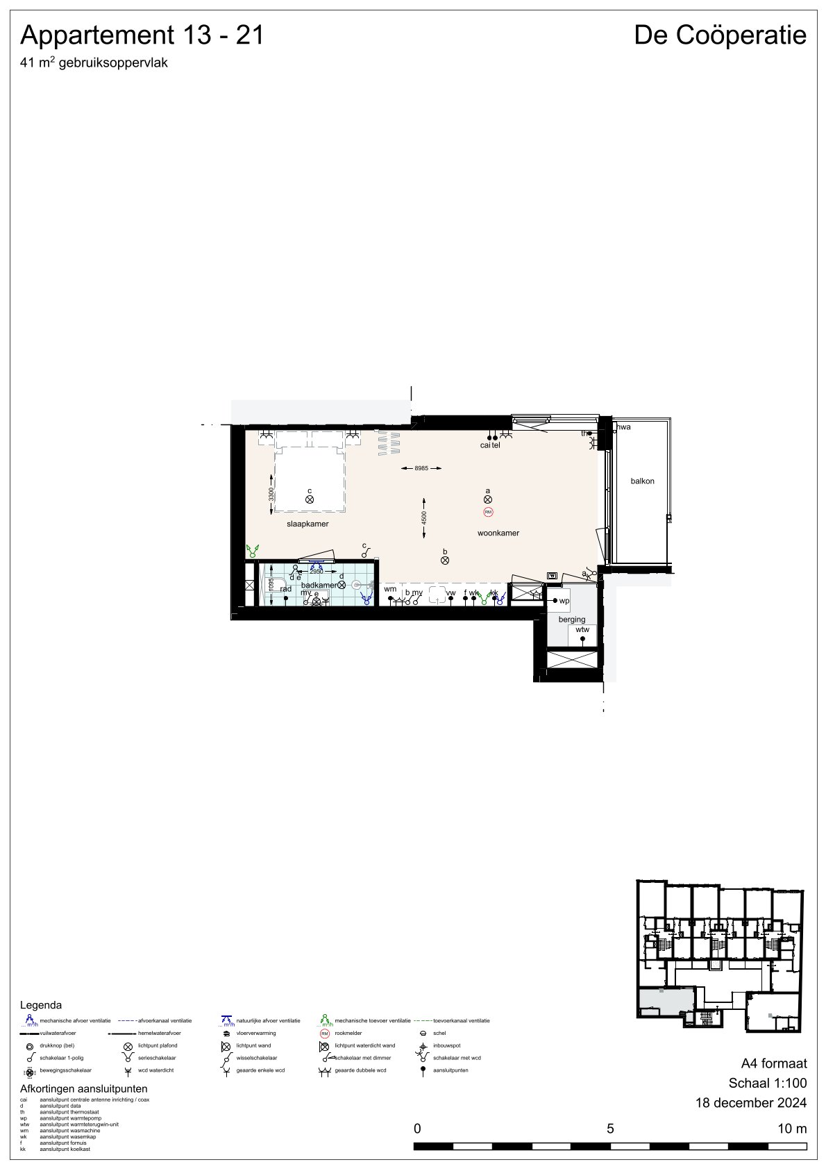
De Coöperatie biedt een divers aanbod van slim ontworpen studio’s en appartementen, allemaal voorzien van een balkon, dakterras of patio. Zo heeft u altijd een fijne buitenruimte om te ontspannen. Prijzen starten vanaf €255.000,- en lopen op tot €535.000,- vrij op naam.
Waarom kiezen voor De Coöperatie?
– Energiezuinig & duurzaam: Alle woningen hebben Energielabel A++ of A+++ en zijn gebouwd met duurzame materialen.
– Zonnepanelen: Profiteer van lagere energiekosten door het gebruik van zonne-energie.
– Buitenruimte: Iedere woning is voorzien van een balkon, dakterras of patio.
– Lift aanwezig: Geschikt voor bewoners van alle leeftijden.
– Fietsenstalling: Veilig en ruim voldoende plek voor uw fiets.
– Toplocatie: Wonen in het centrum van Purmerend, met winkels, horeca en openbaar vervoer om de hoek.
Let op: er worden geen parkeerplaatsen aangeboden bij dit project, een bewuste keuze voor een groenere en autoluwe woonomgeving.
Wonen in hartje Purmerend
De Coöperatie ligt aan de Achterdijk, midden in de binnenstad van Purmerend. Hier geniet u van het beste van twee werelden: het gemak en de gezelligheid van de stad én het comfort van een gloednieuw, energiezuinig appartement.
Dit project is dé kans om te wonen in een moderne en duurzame woning op een toplocatie. Wees er snel bij! Interesse? Neem contact op voor meer informatie en beschikbaarheid.
De Coöperatie: duurzaam, stijlvol en midden in het centrum!





















